Co: 2-pokojowe mieszkanie z dużym balkonem (ok. 6,4 m), w pełni wyposażone, gotowe do zamieszkania; do mieszkania przynależy murowana piwnica/komórka lokatorska (ok. 3,72 m) w cenie, Metraż: 42,81 m (łączna powierzchnia z komórką lokatorską: 46,53 m), Gdzie: Poznań, ul. Wilczak 15, Za ile: 560 000 zł (cena nie podlega negocjacji), Od kiedy: do ustalenia, Stan prawny: pełna własność z Księgą Wieczystą, Parking: nie posiadamy miejsca w hali garażowej
OPIS MIESZKANIA, Na sprzedaż komfortowe, 2-pokojowe mieszkanie położone na 1. piętrze nowoczesnego budynku z 2015 roku, zlokalizowanego wewnątrz kameralnego osiedla Wilczak 15. Lokal bardzo cichy, z ekspozycją wschodnią, idealny zarówno do zamieszkania, jak i jako inwestycja pod wynajem.
, Mieszkanie o powierzchni 42,81 m jest w pełni wyposażone i gotowe do wprowadzenia. Atutem nieruchomości jest przestronny balkon o powierzchni ok. 6,4 m, biegnący wzdłuż całego mieszkania. W sypialni oraz korytarzu znajdują się pojemne, wykonane na wymiar szafy. Budynek oraz lokal charakteryzują się bardzo dobrą izolacją akustyczną.
, Dodatkowo mieszkanie posiada przygotowaną instalację pod rolety elektryczne (wraz z osprzętem, bez konieczności kucia ścian).
, Do lokalu przynależy murowana piwnica/komórka lokatorska o powierzchni ok. 3,72 m wliczona w cenę.
, KOSZTY UTRZYMANIA, Czynsz administracyjny: ok. 612 zł (w zależności od zużycia), w tym m.in.:, zaliczki na CO, ciepłą i zimną wodę, fundusz remontowy (2,05 zł/m), monitoring, sprzątanie części wspólnych
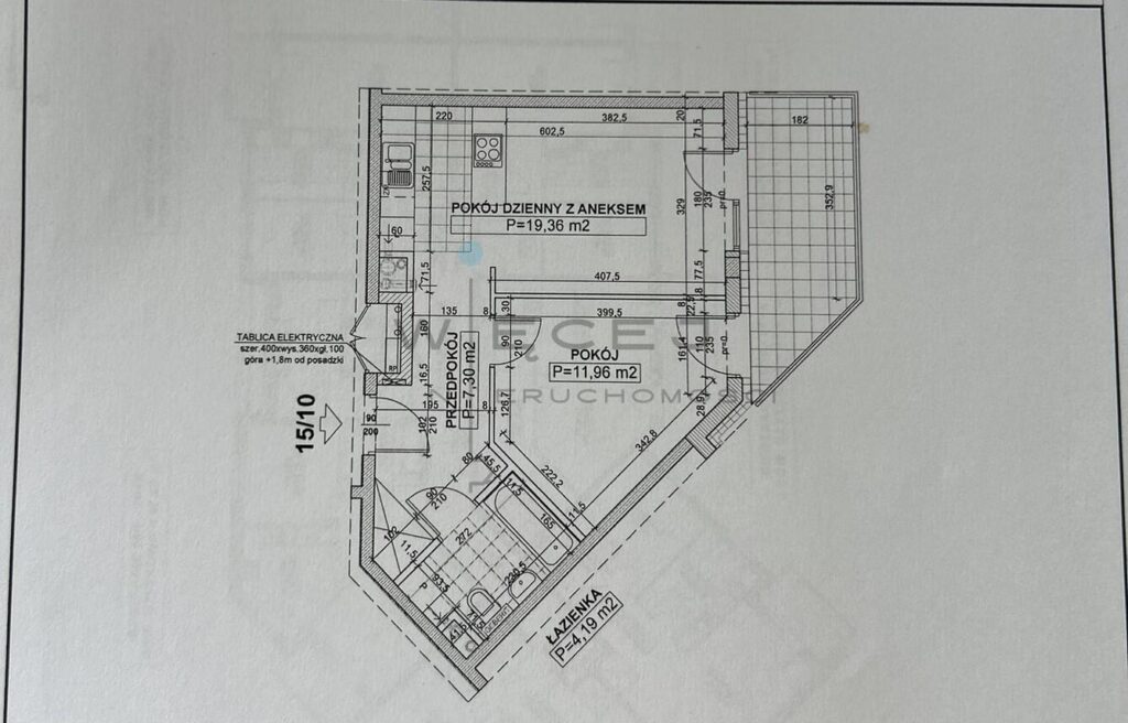
ROZKŁAD POMIESZCZEŃ, salon z aneksem kuchennym: 19,36 m, sypialnia: 11,96 m, łazienka: 4,19 m, korytarz: 7,3 m
LOKALIZACJA, Inwestycja Wilczak 15 to kameralny kompleks trzech budynków, położony w bezpośrednim sąsiedztwie parku Szeląg. Budynek jest osłonięty od hałasu ulicznego przez sąsiedni obiekt usługowo-biurowy “Zielony Szeląg”, co zapewnia wysoki komfort akustyczny.
, Lokalizacja szczególnie ceniona przez najemców gwarantuje szybki dojazd do centrum miasta oraz do dużych pracodawców po wschodniej stronie Poznania (m.in. Volkswagen, Beiersdorf, Unilever, Bridgestone). Dynamicznie rozwijająca się okolica Wilczaka i Naramowic oraz rozbudowa infrastruktury tramwajowej dodatkowo zwiększają atrakcyjność inwestycyjną.
, OTOCZENIE I USŁUGI, Aldi 150 mŻabka 250 mbiurowiec Zielony Szeląg 150 msiłownia Fabryka Formy 600 mpark Szeląg / tereny zielone w bezpośrednim sąsiedztwieCH Leroy Merlin / Decathlon 1000 mpiekarnia / pizzeria Winogratka 600 m, KOMUNIKACJA, przystanki autobusowe 5 min pieszo (linie: 167, 174, 183, 185, 190, 214, 224, 322, 911)przystanek tramwajowy 6 min pieszo (linie: 3, 10)centrum miasta (Stary Rynek) ok. 10 min samochodempark Cytadela ok. 7 min rowerem
Kacper Bogacki
– Więcej Nieruchomości, tel. 512 346 076
Zainteresowanych zapraszam do kontaktu w celu umówienia prezentacji.
, If you require information in English, please contact me.
I am available via WhatsApp, Messenger, or phone call to assist you.
, Opis oferty ma charakter informacyjny, powstał na podstawie danych przekazanych przez właściciela i może ulec zmianie. Nie stanowi oferty w rozumieniu art. 66 i następnych Kodeksu cywilnego
Treść niniejszego ogłoszenia nie stanowi oferty handlowej w rozumieniu Kodeksu Cywilnego.

